home
about
services
portfolio
landscape
architecture
interior
marine
contact
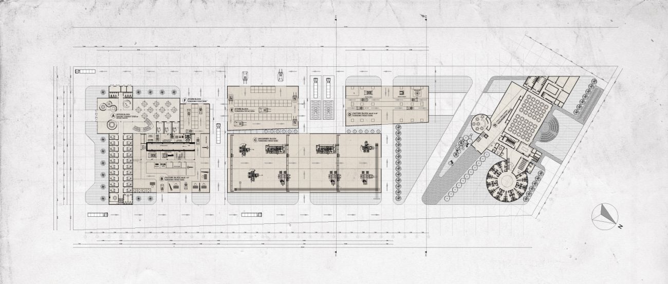
Portfolio / Architecture Design
Factory
Architecture Design
Location : Sharjah, U.A.E.
Type : Industrial
Size : 23'012.50 sq.m
Year : 2008